Gustav Epple & b_solution
Angebot 8


Basis Infos
Das Wohnbauprojekt wird in einer fortschrittlichen Massivholz Systembauweise realisiert, die auf hochgradig industriell vorgefertigte Bauteil-Komponenten setzt. Sämtliche Außen- und Innenwände bestehen aus Brettsperrholz BBS (Massivholz), ebenso die Decken und Dächer, was eine nachhaltige und robuste Bauweise gewährleistet. Hochgradig vorgefertigte Versorgungsmodule (b_box) kombinieren ein hochwertig ausgestattetes Badezimmer, komplett integrierte Haustechnik und einen vorgefertigten Versorgungsschacht, wodurch eine schnelle Montage und Installation vor Ort möglich wird. Die Fassade ist hinterlüftet und besteht aus einer Kombination von Holz und HPL (Trespa), die dem Gebäude ein modernes und langlebiges Erscheinungsbild verleiht. Optional kann eine Photovoltaikanlage (PV-Anlage) auf dem Dach installiert werden, um den Energiebedarf nachhaltig zu decken. Die Nutzung eines Gründachs ist möglich, abhängig von der Installation einer PV-Anlage. Die Beheizung erfolgt über eine zentrale Luft-Wasser-Wärmepumpe, während die dezentrale Warmwasserbereitung durch Pufferspeicher und eine eigene Luft-Wasser-Wärmepumpe unterstützt wird. Der Energiestandard des Projekts entspricht der Klasse A, und das Gebäude erreicht ein Global Warming Potential (GWP100) von 20,0 kg CO₂-Äquivalent pro Quadratmeter und Jahr.
ANBIETER
Anbieter
Gustav Epple & b_solution, Stuttgart / Binderholz b-Solution, Hallein, Salzburg (A)
Adresse
Tränkestraße 4,
70597 Stuttgart
Deutschland
SMB2@gustav-epple.de
Website
www.gustav-epple.de, www.b-solution.com
ARCHITEKT
Architekt/Planer
architekturagentur Grübnau, Freudenberger, Egger, Hilt PartGmbB
Bobingen/Stuttgart




Eckdaten
Bauweise
Elementiert
Hauptbaustoff
Holz
Serialität/
Standardisierung
'Decken und Dächer aus Brettsper...
Fassade
Hinterlüftete Fassade Holz
Photovoltaik
Möglich
Gründach
Möglich
Energiestandard
A
GWP100
20 kg/m2a
Konstruktion, Hauptmaterial,
Modularität
hochgradig industriell produzier...
Vorfertigung
Versorgungseinheit b_box: indust...
Heizen/Energie
Heizen/Energie: Luftwasser-Wärme...
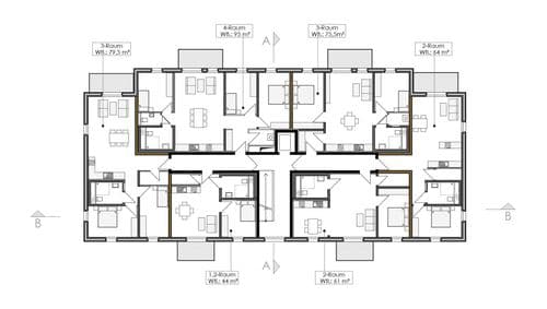
Erd- & Regelgeschoss



Isometrie

Gebäudekennwerte
Bebaute Fläche BF
601 m²
Brutto Grundfläche BGF oi
3015 m²
Brutto-Rauminhalt oi
8192 m²
Hüllenfläche HF oi
2127 m²
HF oi horizontal
601 m²
HF oi vertikal
1526 m²
Nutzungsfläche NUF oi
2100 m²
Mieterabstellräume
121 m²
Sonstiges
62 m²
Balkone, Terrassen, Außenflächen
251 m²
Technikfläche TF
39 m²
Verkehrsfläche VF oi
293 m²
Wohnfläche WF
1917 m²
Typ 1 - 1 Zimmer Wohnung WF
Typ 1 - Wohnung 1:
60 m²
Typ 1 - Wohnung 2:
57 m²
Typ 1 - Wohnung 3:
48 m²
Typ 2 - 2 Zimmer Wohnung WF
Typ 2 - Wohnung 1:
63 m²
Typ 2 - Wohnung 2:
71 m²
Typ 2 - Wohnung 3:
65 m²
Typ 2 - Wohnung 4:
73 m²
Typ 2 - Wohnung 5:
71 m²
Typ 2 - Wohnung 6:
65 m²
Typ 2 - Wohnung 7:
49 m²
Typ 2 - Wohnung 8:
71 m²
Typ 2 - Wohnung 9:
65 m²
Typ 2 - Wohnung 10:
49 m²
Typ 3 - 3 Zimmer Wohnung WF
Typ 3 - Wohnung 1:
74 m²
Typ 3 - Wohnung 2:
86 m²
Typ 3 - Wohnung 3:
83 m²
Typ 3 - Wohnung 4:
83 m²
Typ 3 - Wohnung 5:
86 m²
Typ 3 - Wohnung 6:
83 m²
Typ 3 - Wohnung 7:
86 m²
Typ 3 - Wohnung 8:
93 m²
Typ 4 - 4 Zimmer Wohnung WF
Typ 4 - Wohnung 1:
103 m²
Typ 4 - Wohnung 2:
103 m²
Typ 4 - Wohnung 3:
103 m²
Typ 4 - Wohnung 4:
128 m²
Typ 4 - 5 Zimmer Wohnung WF
Typ 5 - 6 Zimmer Wohnung WF
Flächen- und Volumenindizes
Index 1 BF/BGF:
0.22
Index 2 NUF/BGF:
0.7
Index 2 BRI/BGF:
3
Index 2 HF/BRI:
0.26
