Max Bögl Modul AG
Angebot 6


Basis Infos
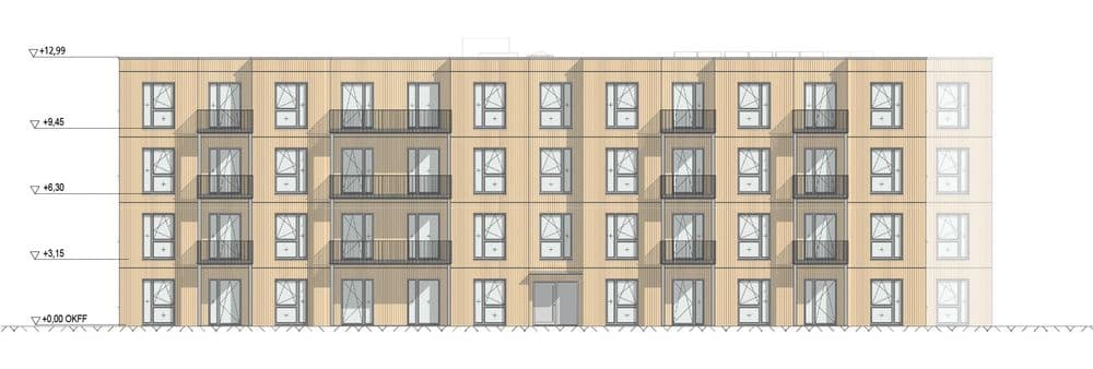
Das Wohnbauprojekt wird in einer innovativen Holz-Beton-Hybridbauweise umgesetzt, die auf Nachhaltigkeit und eine hohe Energieeffizienz setzt. Die Außen- und Innenwände sowie die Massivbäder bestehen aus zementreduziertem Beton, der recycelbar ist und somit eine umweltfreundliche Wahl darstellt. Die Decken werden als Betonrippendecken ausgeführt, und die Treppenanlagen bestehen aus massivem Stahlbeton für eine stabile und langlebige Konstruktion. Die Module werden in einer Baufabrik nach dem Baukastenprinzip vorgefertigt. Diese Einzelmodule sind bereits bis zu 80 % ausgebaut, was eine schnelle und effiziente Montage vor Ort ermöglicht. Der Mittelflur wird ebenfalls seriell gefertigt, was den Bauprozess weiter rationalisiert. Die Fassade des Gebäudes erhält eine ansprechende Holzschalung, die ein modernes und natürliches Erscheinungsbild vermittelt.Eine Photovoltaikanlage (PV-Anlage) ist optional integrierbar, um den Strombedarf des Gebäudes nachhaltig zu decken. Ein Gründach ist ebenfalls möglich, um das Mikroklima zu verbessern und Regenwasser zurückzuhalten.Die Beheizung erfolgt über eine Luft-Wasser-Wärmepumpe, und die dezentrale Warmwasserbereitung arbeitet mit einem Niedertemperatursystem. Das Projekt erfüllt den Energiestandard EH 40 und weist ein Global Warming Potential (GWP100) von 23,94 kg CO₂-Äquivalent pro Quadratmeter und Jahr auf.
ANBIETER
Anbieter
Max Bögl Modul AG, Neumarkt
Adresse
Postfach 11 20,
92301 Neumarkt
Deutschland
rkrehan@max-boegl.de
Website
www.max-boegl.de
ARCHITEKT
Architekt/Planer
beier baudesign GmbH
Braunschweig




Eckdaten
Bauweise
Elementiert
Hauptbaustoff
Beton-Hybrid
Serialität/
Standardisierung
Zwei Standardgrößen von 6,36 m x...
Fassade
Holz Schalung
Photovoltaik
Möglich
Gründach
Möglich
Energiestandard
EH40
GWP100
23.94 kg/m2a
Konstruktion, Hauptmaterial,
Modularität
Außen- und Innenwände, ebenso Ma...
Vorfertigung
'Werkseitige Vorfertigung der Ei...
Heizen/Energie
Heizen/Energie: Luftwasser-Wärme...
Erd- & Regelgeschoss



Isometrie

Gebäudekennwerte
Bebaute Fläche BF
606 m²
Brutto Grundfläche BGF oi
2662 m²
Brutto-Rauminhalt oi
7876 m²
Hüllenfläche HF oi
2287 m²
HF oi horizontal
606 m²
HF oi vertikal
1681 m²
Nutzungsfläche NUF oi
2082 m²
Mieterabstellräume
0 m²
Sonstiges
55 m²
Balkone, Terrassen, Außenflächen
231 m²
Technikfläche TF
21 m²
Verkehrsfläche VF oi
201 m²
Wohnfläche WF
2027 m²
Typ 1 - 1 Zimmer Wohnung WF
Typ 1 - Wohnung 1:
50 m²
Typ 1 - Wohnung 2:
50 m²
Typ 1 - Wohnung 3:
50 m²
Typ 1 - Wohnung 4:
50 m²
Typ 2 - 2 Zimmer Wohnung WF
Typ 2 - Wohnung 1:
73 m²
Typ 2 - Wohnung 2:
65 m²
Typ 2 - Wohnung 3:
68 m²
Typ 2 - Wohnung 4:
65 m²
Typ 2 - Wohnung 5:
65 m²
Typ 2 - Wohnung 6:
65 m²
Typ 2 - Wohnung 7:
65 m²
Typ 3 - 3 Zimmer Wohnung WF
Typ 3 - Wohnung 1:
94 m²
Typ 3 - Wohnung 2:
89 m²
Typ 3 - Wohnung 3:
90 m²
Typ 3 - Wohnung 4:
94 m²
Typ 3 - Wohnung 5:
89 m²
Typ 3 - Wohnung 6:
89 m²
Typ 3 - Wohnung 7:
94 m²
Typ 3 - Wohnung 8:
89 m²
Typ 3 - Wohnung 9:
90 m²
Typ 4 - 4 Zimmer Wohnung WF
Typ 4 - Wohnung 1:
136 m²
Typ 4 - Wohnung 2:
136 m²
Typ 4 - Wohnung 3:
136 m²
Typ 4 - Wohnung 4:
136 m²
Typ 4 - 5 Zimmer Wohnung WF
Typ 5 - 6 Zimmer Wohnung WF
Flächen- und Volumenindizes
Index 1 BF/BGF:
0.25
Index 2 NUF/BGF:
0.78
Index 2 BRI/BGF:
3.25
Index 2 HF/BRI:
0.29
