IWP Hohental GmbH
Angebot 21


Basis Infos
Das geplante Wohnbauprojekt wird in einer konventionellen Beton-Modulbauweise realisiert, die auf Stahlbeton mit Wärmedämmverbundsystem (WDVS) basiert. Die tragende Konstruktion besteht aus Stahlbetonwänden und -decken, während die nichttragenden Innenwände in Mauerwerksbauweise ausgeführt werden. Die Decken erhalten einen vollständigen Fußbodenaufbau, was den Wohnkomfort erhöht und eine hohe Stabilität bietet. Ein gleichbleibendes Achsraster und einheitliche Fensterformate sorgen für eine klare und effiziente Grundrissgestaltung. Die Fassadengestaltung erfolgt mit Putz auf WDVS und verleiht dem Gebäude ein modernes und energieeffizientes Erscheinungsbild. Zur Deckung des Energiebedarfs kann eine Photovoltaikanlage (PV-Anlage) installiert werden. Zudem ist etwa 80 % der Dachfläche als Gründach nutzbar, was das Mikroklima verbessert und zur ökologischen Regenwasserbewirtschaftung beiträgt. Das Projekt entspricht dem Energiestandard EH 40 und erreicht ein Global Warming Potential (GWP100) von 30,71 kg CO₂-Äquivalent pro Quadratmeter und Jahr.
ANBIETER
Anbieter
IWP Hohental GmbH, Berlin
Adresse
Ehrenbergstraße 11-14,
10245 Berlin
Deutschland
christoph.schmid@hohental.de
Website
www.hohental.de
ARCHITEKT
Architekt/Planer
Baumschlager Eberle Architekten (BE Berlin GmbH)
Berlin




Eckdaten
Bauweise
Elementiert
Hauptbaustoff
Beton
Serialität/
Standardisierung
Gleichbleibendes Achsraster, ein...
Fassade
Putz WDVS Stahlbeton
Photovoltaik
Möglich
Gründach
Bedingt Möglich
Energiestandard
EH40
GWP100
30.71 kg/m2a
Konstruktion, Hauptmaterial,
Modularität
Konventionelle Stahlbetonbauweis...
Vorfertigung
Keine Vorfertigung
Heizen/Energie
Heizen/Energie: Luftwasser-Wärme...
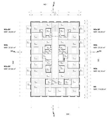
Erd- & Regelgeschoss



Isometrie

Gebäudekennwerte
Bebaute Fläche BF
553 m²
Brutto Grundfläche BGF oi
2291 m²
Brutto-Rauminhalt oi
6994 m²
Hüllenfläche HF oi
1810 m²
HF oi horizontal
553 m²
HF oi vertikal
1257 m²
Nutzungsfläche NUF oi
1734 m²
Mieterabstellräume
76 m²
Sonstiges
67 m²
Balkone, Terrassen, Außenflächen
100 m²
Technikfläche TF
0 m²
Verkehrsfläche VF oi
227 m²
Wohnfläche WF
1592 m²
Typ 1 - 1 Zimmer Wohnung WF
Typ 1 - Wohnung 1:
42 m²
Typ 1 - Wohnung 2:
42 m²
Typ 1 - Wohnung 3:
42 m²
Typ 1 - Wohnung 4:
42 m²
Typ 1 - Wohnung 5:
42 m²
Typ 1 - Wohnung 6:
42 m²
Typ 2 - 2 Zimmer Wohnung WF
Typ 2 - Wohnung 1:
52 m²
Typ 2 - Wohnung 2:
52 m²
Typ 2 - Wohnung 3:
52 m²
Typ 2 - Wohnung 4:
52 m²
Typ 2 - Wohnung 5:
52 m²
Typ 2 - Wohnung 6:
52 m²
Typ 3 - 3 Zimmer Wohnung WF
Typ 3 - Wohnung 1:
67 m²
Typ 3 - Wohnung 2:
71 m²
Typ 3 - Wohnung 3:
66 m²
Typ 3 - Wohnung 4:
71 m²
Typ 3 - Wohnung 5:
66 m²
Typ 3 - Wohnung 6:
71 m²
Typ 3 - Wohnung 7:
66 m²
Typ 3 - Wohnung 8:
71 m²
Typ 4 - 4 Zimmer Wohnung WF
Typ 4 - 5 Zimmer Wohnung WF
Typ 4 - Wohnung 1:
120 m²
Typ 4 - Wohnung 2:
119 m²
Typ 4 - Wohnung 3:
119 m²
Typ 4 - Wohnung 4:
119 m²
Typ 5 - 6 Zimmer Wohnung WF
Flächen- und Volumenindizes
Index 1 BF/BGF:
0.25
Index 2 NUF/BGF:
0.75
Index 2 BRI/BGF:
3.18
Index 2 HF/BRI:
0.26
