Lechner Immobilien Development GmbH
Angebot 15


Basis Infos
Das geplante Wohnbauprojekt wird in einer modernen Holz-Beton-Hybridbauweise umgesetzt, die auf Nachhaltigkeit und Effizienz ausgerichtet ist. Die Konstruktion kombiniert Betonmodule mit einem Wärmedämmverbundsystem (WDVS) und Decken aus Brettsperrholz- sowie Stahlbetonmodulen. Diese Bauweise vereint Stabilität und Energieeffizienz. Vorkonfektionierte Badmodule und vorgefertigte Balkone mit Streckmetallbrüstungsfeldern sorgen für eine schnelle und einfache Installation, da sie bereits in der Fließbandfertigung vorkonfektioniert werden. Ein integraler Bestandteil des Energiekonzepts ist die Photovoltaikanlage (PV-Anlage), die zur Deckung des Energiebedarfs beiträgt. Die extensive Dachbegrünung kann vollflächig umgesetzt werden, um das Mikroklima zu verbessern und Regenwasser ökologisch zu bewirtschaften. Für die Heizung und Kühlung kommt eine kaskadierte, invertierte Luft-Wasser-Wärmepumpe zum Einsatz, die über eine Niedrigtemperatur-Deckenheizung sowohl heizt als auch kühlt. Die zentrale Warmwasserbereitung gewährleistet eine effiziente und zuverlässige Warmwasserversorgung. Der Bau entspricht dem Energiestandard EH 40 und erreicht ein Global Warming Potential (GWP100) von 23,85 kg CO₂-Äquivalent pro Quadratmeter und Jahr.
ANBIETER
Anbieter
Lechner Immobilien Development GmbH, Frankfurt am Main
Adresse
Altenhöferallee 133,
60438 Frankfurt am Main
Deutschland
fiederer.s@lechnergroup.com, gdw@lechnergroup.com
Website
www.lechner-cube.de
ARCHITEKT
Architekt/Planer
planquadrat Elfers Geskes Krämer PartG mbB
Darmstadt




Eckdaten
Bauweise
Elementiert
Hauptbaustoff
Beton-Hybrid
Serialität/
Standardisierung
Vorkonfektionierte Badmodule und...
Fassade
Holz WDVS Putz
Photovoltaik
Bestandteil Konzept
Gründach
Extensiv Vollflächig
Energiestandard
EH40
GWP100
23.85 kg/m2a
Konstruktion, Hauptmaterial,
Modularität
Betonmodul mit WDVS; Brettsperrh...
Vorfertigung
Fließbandfertigung
Heizen/Energie
Heizen/Energie: invertierte Luft...
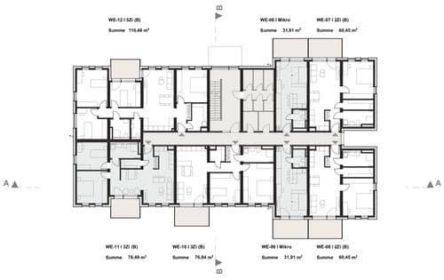
Erd- & Regelgeschoss



Isometrie

Gebäudekennwerte
Bebaute Fläche BF
643 m²
Brutto Grundfläche BGF oi
2737 m²
Brutto-Rauminhalt oi
7661 m²
Hüllenfläche HF oi
2036 m²
HF oi horizontal
643 m²
HF oi vertikal
1393 m²
Nutzungsfläche NUF oi
2152 m²
Mieterabstellräume
80 m²
Sonstiges
72 m²
Balkone, Terrassen, Außenflächen
306 m²
Technikfläche TF
20 m²
Verkehrsfläche VF oi
245 m²
Wohnfläche WF
2001 m²
Typ 1 - 1 Zimmer Wohnung WF
Typ 1 - Wohnung 1:
40 m²
Typ 1 - Wohnung 2:
40 m²
Typ 1 - Wohnung 3:
40 m²
Typ 1 - Wohnung 4:
40 m²
Typ 1 - Wohnung 5:
40 m²
Typ 1 - Wohnung 6:
40 m²
Typ 2 - 2 Zimmer Wohnung WF
Typ 2 - Wohnung 1:
80 m²
Typ 2 - Wohnung 2:
80 m²
Typ 2 - Wohnung 3:
68 m²
Typ 2 - Wohnung 4:
68 m²
Typ 2 - Wohnung 5:
68 m²
Typ 2 - Wohnung 6:
68 m²
Typ 2 - Wohnung 7:
69 m²
Typ 2 - Wohnung 8:
69 m²
Typ 3 - 3 Zimmer Wohnung WF
Typ 3 - Wohnung 1:
98 m²
Typ 3 - Wohnung 2:
98 m²
Typ 3 - Wohnung 3:
83 m²
Typ 3 - Wohnung 4:
85 m²
Typ 3 - Wohnung 5:
83 m²
Typ 3 - Wohnung 6:
85 m²
Typ 3 - Wohnung 7:
84 m²
Typ 3 - Wohnung 8:
86 m²
Typ 4 - 4 Zimmer Wohnung WF
Typ 4 - 5 Zimmer Wohnung WF
Typ 4 - Wohnung 1:
134 m²
Typ 4 - Wohnung 2:
117 m²
Typ 4 - Wohnung 3:
117 m²
Typ 4 - Wohnung 4:
118 m²
Typ 5 - 6 Zimmer Wohnung WF
Flächen- und Volumenindizes
Index 1 BF/BGF:
0.25
Index 2 NUF/BGF:
0.76
Index 2 BRI/BGF:
3.02
Index 2 HF/BRI:
0.27






